Thi công nội thất căn hộ chung cư The Rivana tại Thuận An trọn gói cùng POMICON – đơn vị với hơn 13 năm kinh nghiệm trong lĩnh vực sản xuất và thi công nội thất. POMICON chuyên thi công nội thất phòng khách, phòng ngủ, phòng bếp và phòng cho bé cho các căn hộ 1–3 phòng ngủ tại chung cư The Rivana.

Toàn bộ sản phẩm nội thất được sản xuất trực tiếp tại xưởng, đảm bảo đúng thiết kế, đúng vật liệu cam kết. Quy trình thi công đồng bộ giúp tối ưu chi phí, hạn chế phát sinh và đảm bảo tiến độ. Chính sách bảo hành rõ ràng giúp khách hàng yên tâm sử dụng lâu dài.

Nhu Cầu Thi Công Nội Thất Căn Hộ Chung Cư The Rivana
Chung cư The Rivana là khu căn hộ được nhiều gia đình và chuyên gia lựa chọn sinh sống. Cùng với đó, nhu cầu thi công nội thất căn hộ chung cư The Rivana ngày càng tăng cao, không chỉ ở yếu tố công năng mà còn ở thẩm mỹ và phong cách sống hiện đại.

Đặc thù căn hộ The Rivana sở hữu thiết kế thông minh, không gian mở, đòi hỏi nội thất phải được đo đạc chính xác và thi công theo kích thước thực tế. Nhiều gia chủ ưu tiên lựa chọn đơn vị có xưởng sản xuất nội thất trực tiếp để dễ kiểm soát chất lượng và chi phí.

Các Hạng Mục Thi Công Nội Thất Căn Hộ Chung Cư The Rivana
Thi Công Nội Thất Phòng Khách Căn Hộ Chung Cư The Rivana
Phòng khách căn hộ The Rivana được POMICON thi công với kệ tivi, tủ giày và hệ trang trí hiện đại. Bố cục được sắp xếp hợp lý nhằm tạo cảm giác rộng rãi, thông thoáng.
Nội thất được sản xuất trực tiếp tại xưởng giúp đảm bảo độ chính xác khi lắp đặt, màu sắc và vật liệu hài hòa với tổng thể căn hộ. Phòng khách trở thành điểm nhấn chính của không gian sống.

Thi Công Nội Thất Phòng Ngủ Căn Hộ Chung Cư The Rivana
Phòng ngủ căn hộ chung cư The Rivana được thi công với giường ngủ, tủ quần áo kịch trần và bàn trang điểm.
Thiết kế tập trung vào sự thoải mái, riêng tư và tối ưu không gian lưu trữ. Các chi tiết được tính toán kỹ lưỡng, vật liệu bền đẹp, phù hợp nhu cầu sử dụng lâu dài. Không gian phòng ngủ mang lại cảm giác thư giãn và tiện nghi cho gia chủ.

Thi Công Nội Thất Phòng Bếp Căn Hộ Chung Cư The Rivana
Phòng bếp bao gồm tủ bếp trên – dưới, kính ốp bếp và hệ phụ kiện bếp thông minh.
Thiết kế chú trọng công năng, sự tiện lợi trong quá trình nấu nướng và dễ dàng vệ sinh. Nội thất bếp được thi công chắc chắn, bố trí phù hợp với mặt bằng căn hộ The Rivana, giúp không gian bếp luôn gọn gàng và hiện đại.

Thi Công Nội Thất Phòng Cho Bé Căn Hộ Chung Cư The Rivana
Phòng cho bé tại căn hộ chung cư The Rivana được thiết kế phù hợp với từng độ tuổi.
POMICON chú trọng yếu tố an toàn, màu sắc hài hòa và công năng học tập. Các hạng mục như giường ngủ, bàn học, tủ đồ được bố trí khoa học, giúp bé vừa học tập vừa vui chơi trong không gian thoải mái.

Các Hạng Mục Nội Thất Chi Tiết Khác Tại Căn Hộ Chung Cư The Rivana
Thi Công Kệ Tivi Căn Hộ Chung Cư The Rivana
Kệ tivi được thiết kế và thi công theo kích thước thực tế từng căn hộ. Kiểu dáng hiện đại, tối ưu lưu trữ và đảm bảo thẩm mỹ tổng thể.

Thi Công Bàn Trang Điểm Căn Hộ Chung Cư The Rivana
Bàn trang điểm thiết kế gọn gàng, kết hợp ngăn kéo và tủ lưu trữ tiện lợi, đồng bộ với nội thất phòng ngủ.

Thi Công Tủ Quần Áo Căn Hộ Chung Cư The Rivana
Tủ quần áo kịch trần giúp tối ưu không gian lưu trữ. Bố trí khoa học, vật liệu bền đẹp, phù hợp sử dụng lâu dài.

Thi Công Tủ Bếp Căn Hộ Chung Cư The Rivana
Tủ bếp được thi công với kết cấu chắc chắn, hệ tủ trên – dưới kết hợp phụ kiện thông minh, nâng cao trải nghiệm sử dụng.

FAQ – Câu Hỏi Thường Gặp Khi Thi Công Nội Thất Căn Hộ Chung Cư The Rivana
POMICON có nhận thi công nội thất căn hộ chung cư The Rivana không?
Có. POMICON nhận thi công nội thất căn hộ chung cư The Rivana và các khu vực lân cận. Với xưởng sản xuất trực tiếp, chất lượng và tiến độ luôn được kiểm soát rõ ràng, giá thành tối ưu.

POMICON nhận thi công những hạng mục nào tại Căn Hộ Chung Cư The Rivana?
POMICON nhận thi công nội thất phòng khách, phòng ngủ, phòng bếp, phòng cho bé, kệ tivi, bàn trang điểm, tủ quần áo, tủ bếp và các hạng mục theo yêu cầu riêng của khách hàng.











POMICON – ĐƠN VỊ THI CÔNG NỘI THẤT TRỌN GÓI
📞 Hotline: 08 1500 1508 (Tặng thiết kế – liên hệ ngay)
🌐 Website: pomicon.com
POMICON – Giải pháp nội thất trọn gói tại Tp. Hồ Chí Minh, cam kết chất lượng – thẩm mỹ – tiến độ!
![]()
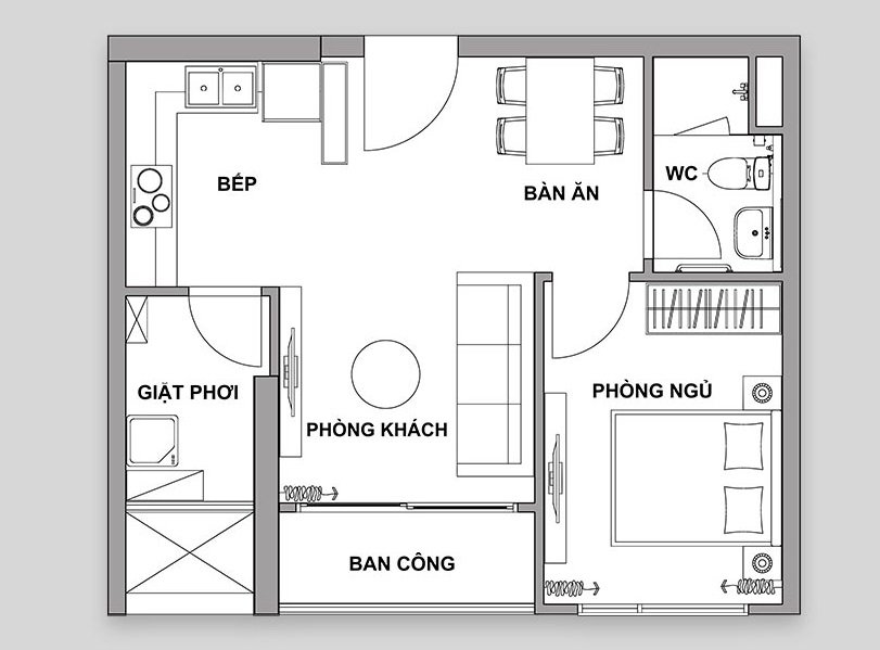
Thiết Kế Thi Công Nội Thất Căn Hộ Chung Cư The Rivana Tại Thuận An
| ✅ Sản phẩm Nội thất | ⭕ POMICON chuyên sản xuất và thi công các loại Tủ Bếp, Nội Thất Phòng Ngủ, Nội Thất Phòng Khách, Kệ Trang Trí, Bàn Ghế, Quầy Kệ Trưng Bày. Sản phẩm được thiết kế hiện đại, sử dụng vật liệu chất lượng cao, tối ưu công năng và thẩm mỹ cho không gian sống. |
| ✅ Bảo hành sản phẩm | ⭐ POMICON cam kết bảo hành dài hạn cho các sản phẩm nội thất. Với chính sách hậu mãi chu đáo, chúng tôi đảm bảo chất lượng, độ bền và sự hài lòng của khách hàng trong quá trình sử dụng. |
| ✅ Tư vấn thiết kế nội thất | ⭕ POMICON cung cấp dịch vụ tư vấn thiết kế nội thất trọn gói cho căn hộ, nhà phố, showroom. Chúng tôi mang đến giải pháp sáng tạo, tối ưu hóa không gian, kết hợp hài hòa giữa công năng và thẩm mỹ. |
| ✅ Setup không gian sống | ⭐ POMICON nhận setup hoàn thiện các không gian nội thất phòng khách, phòng bếp, phòng ngủ. Chúng tôi bố trí khoa học, hợp phong thủy, mang lại sự tiện nghi và phong cách sang trọng cho ngôi nhà của bạn. |
Xem thêm bài viết liên quan
Thiết kế nội thất tại Nhà Phố Thuận An Land
Thi công thiết kế nội thất Nhà Phố Thuận An Land Thuận An cùng POMICON mang đến giải pháp nội thất trọn gói từ thiết kế 3D, sản xuất đến thi công hoàn...
Thiết kế nội thất tại Nhà ở thương mại An Phát Lái Thiêu Thuận An
Thiết kế nội thất Nhà ở thương mại An Phát Thuận An Bàu Bàng trọn gói cùng POMICON, đơn vị hơn 13 năm kinh nghiệm trong lĩnh vực thiết kế, sản xuất và...
Thiết kế nội thất tại Hồ Gươm Xanh Thuận An
Thiết kế nội thất Hồ Gươm Xanh tại Thuận An trọn gói cùng POMICON – đơn vị giàu kinh nghiệm với hơn 13 năm trong lĩnh vực thiết kế, sản xuất và thi cô...

